客製化清潔器


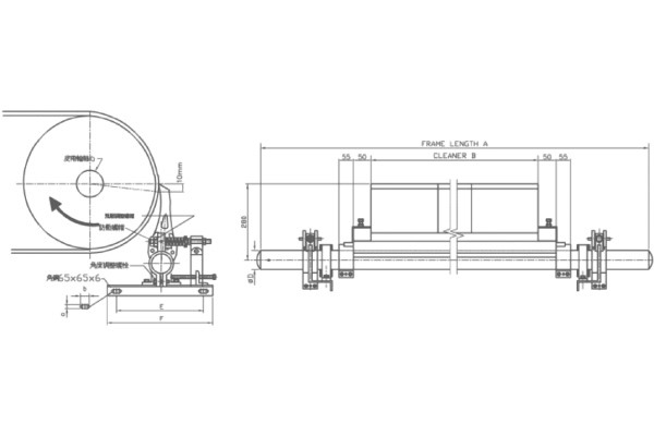
▲ 刮刀片採用特級優力膠一體成型,特具有高強度、高耐磨性及低摩擦系數之優點,能有效減緩刮刀片之損耗,延長使用壽命。

▲ 刮刀座兩端各具有一組彈力施壓裝置,除了可調整刮刀片與輸送皮帶表面間的接觸壓力外,另可有效的防止支撐桿承受不當的扭轉力,可維持各刮刀片與輸送皮帶表面間緊密的貼附性,提昇刮除效果。

Download

 

客製化清潔器

客製化清潔器

客製化清潔器

客製化清潔器

 

客製化清潔器

客製化清潔器

客製化清潔器

客製化清潔器

聯絡我們留言